










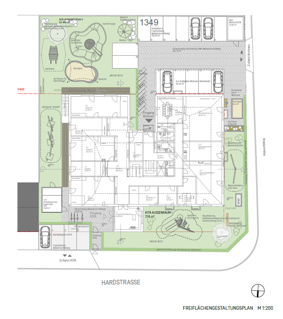
Hardstraße 101 Fürth/Hardhöhe
- Nutzungsart: KiTa (3x KiKri, 2x KiGa) 13 Wohnungen
- Objektgröße: Rund 2500m² BGF
- Zeitraum: 2019 - 2021
- Bauherr: privat
- Auftraggeber: privat
- Leistung: Projektsteuerung
- Projektphase: Baurechtschaffung, Planung, Ausschreibung, Realisation, Inbetriebnahme
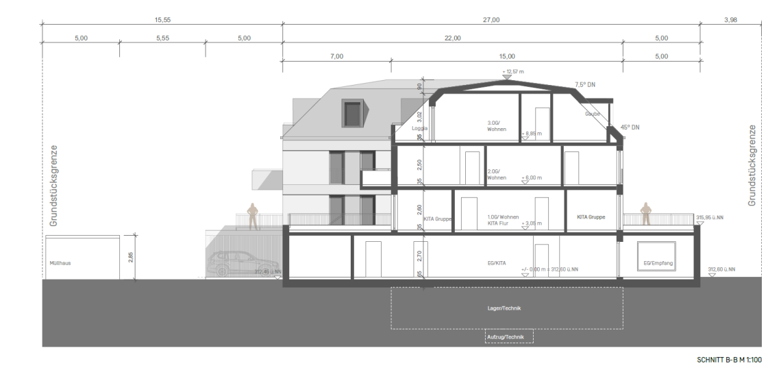
Neubau Wohngebäude (13 Whg.) mit 5-gruppiger KiTa, Fürth
Neubebauung nach Abbruch bestehender Gastronomie- und Einzelhandelsflächen mit KiTa (3 Krippengruppen und 2 Kindergartengruppen) und Geschosswohnungsbau mit 1- bis 4-Zi. Wohnungen im KfW 55 - Standard
Weitere Informationen erhalten Sie gerne auf Anfrage